Espace propriétaire
fr

Votre recherche

Coup de coeur
Patong (83150)

4 pièces - 128 m²

PHUKET A PATONG PROJET VILLA DE STANDING VUE MER. IMMOCENTER THAILANDE

789 000 €
Ref : PW1
Découvrir le bien
Villa Vue Mer Exceptionnelle à Patong – Phuket
 
Prix : 29,5 millions THB (789 000 €)
 
Découvrez cette villa contemporaine unique à Patong, offrant une vue panoramique imprenable sur la mer et des prestations rares dans ce secteur très recherché de Phuket.
Cette propriété haut de gamme, vendue meublée, bénéficie d’un design moderne et d’un confort exceptionnel, idéal pour une résidence principale ou un investissement locatif de prestige.
 
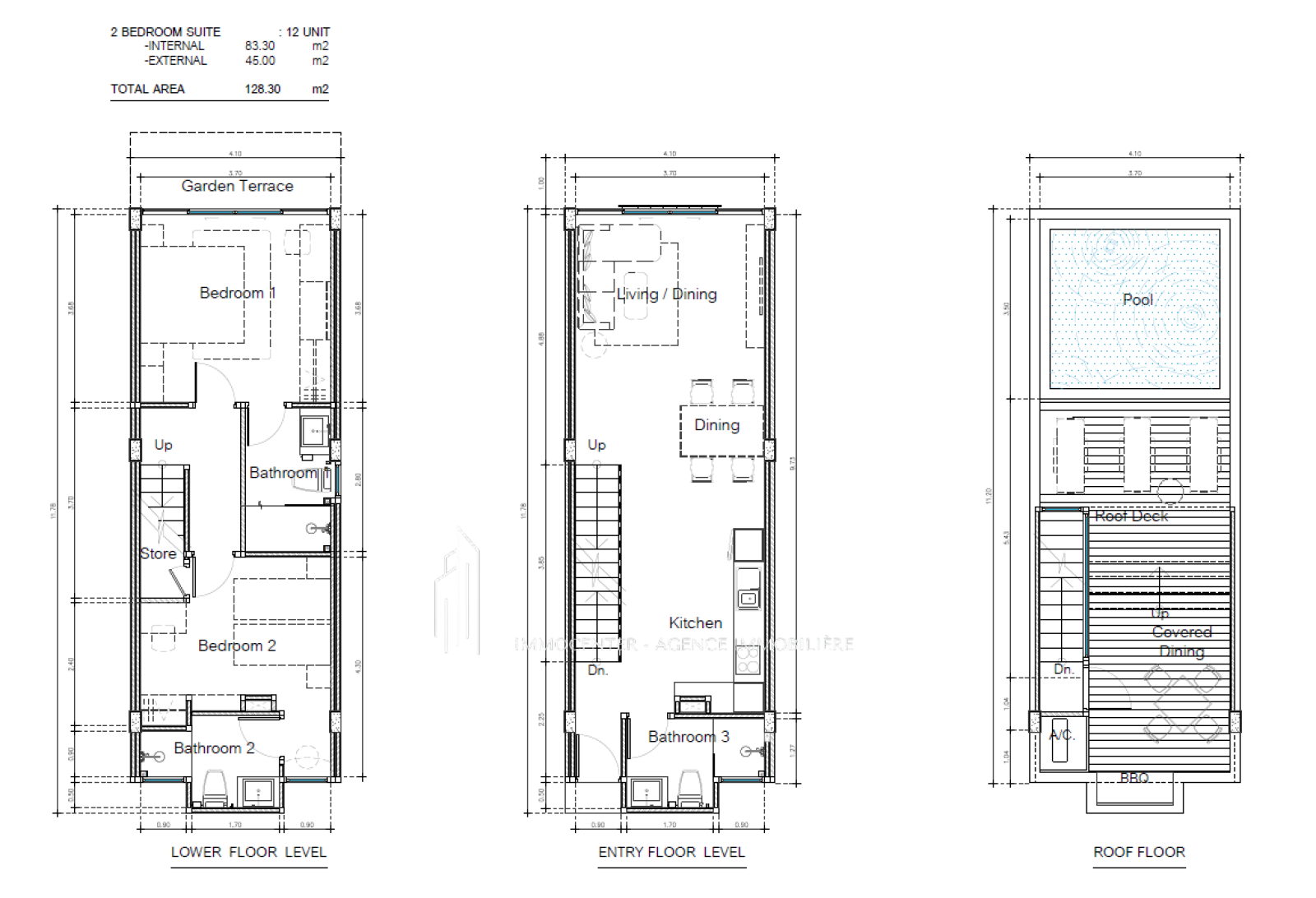
Caractéristiques principales :
• 2 suites parentales spacieuses avec salles de bain privatives
• 3 salles de bain au total
• Grand séjour double salon avec cuisine ouverte entièrement équipée
• Piscine sur le toit avec vaste terrasse panoramique, espace barbecue et coin détente
• Parking privé extérieur
• Vue mer à couper le souffle depuis chaque niveau
 
Équipements de la résidence :
• Restaurant de standing
• Salle de sport moderne
• Environnement sécurisé et entretenu
 
Située dans le quartier prisé de Patong, cette villa représente une opportunité rare sur le marché. Ce type de bien, combinant vue mer, modernité et prestations de luxe, est presque introuvable dans cette zone.
 
Une véritable perle rare à Phuket.
 
 
Agence Immocenter – www.agence-immocenter.com
Contact : +33 6 24 90 51 34
TRAD_ZEPHYR_Caracteristique TRAD_ZEPHYR_Valeurs
Code postal 83150
surface terrain 140 m²
Surface loi Carrez (m²) 128 m²
Nombre de chambre(s) 2
Nombre de pièces 4
Nombre de niveaux 2
Vue MER
TRAD_ZEPHYR_Caracteristique TRAD_ZEPHYR_Valeurs
Nb de salle d'eau 3
Cuisine Américaine
Type de cuisine Equipée
Interphone OUI
Terrasse OUI
Murs mitoyens 1
Exposition Sud-Ouest
Année de construction 2026
TRAD_ZEPHYR_Caracteristique TRAD_ZEPHYR_Valeurs
Copropriété OUI
TRAD_ZEPHYR_Caracteristique TRAD_ZEPHYR_Valeurs
Prix de vente 789 000 €
Les honoraires d'agence seront intégralement à la charge du vendeur  
DPE GES
  • Commerces et santé
  • Loisirs
  • Ecoles
  • Transports
  • Pratique
Contacter pour ce bien
L'agence
Téléphone 06 24 90 51 34
Adresse
11 route de Marseille 38150 Chanas

* Champ obligatoire

Les informations recueillies sur ce formulaire sont enregistrées dans un fichier informatisé par La Boite Immo agissant comme Sous-traitant du traitement pour la gestion de la clientèle/prospects de l'Agence / du Réseau qui reste Responsable du Traitement de vos Données personnelles. La base légale du traitement repose sur l'intérêt légitime de l'Agence / du Réseau. Elles sont conservées jusqu'à demande de suppression et sont destinées à l'Agence / au Réseau. Conformément à la loi « informatique et libertés », vous disposez des droits d’accès, de rectification, d’effacement, d’opposition, de limitation et de portabilité de vos données. Vous pouvez retirer votre consentement à tout moment en contactant directement l’Agence / Le Réseau. Consultez le site https://cnil.fr/fr pour plus d’informations sur vos droits. Si vous estimez, après avoir contacté l'Agence / le Réseau, que vos droits « Informatique et Libertés » ne sont pas respectés, vous pouvez adresser une réclamation à la CNIL. Nous vous informons de l’existence de la liste d'opposition au démarchage téléphonique « Bloctel », sur laquelle vous pouvez vous inscrire ici : https://www.bloctel.gouv.fr Dans le cadre de la protection des Données personnelles, nous vous invitons à ne pas inscrire de Données sensibles dans le champ de saisie libre.
Ce site est protégé par reCAPTCHA, les Politiques de Confidentialité et les Conditions d'Utilisation de Google s'appliquent.

Découvrir nos outils